Mẫu thiết kế nhà 2 tầng hiện đại – Nhà anh Tân Bình Thuận

Một mẫu thiết kế nhà 2 tầng hiện đại rất phù hợp với những ai có nhu cầu xây dựng nhà phố. Nhà anh Tân Bình Thuận sẽ là một lựa chọn hoàn hảo cho giải pháp nhà phố hiện nay.

THÔNG TIN CÔNG TRÌNH NHÀ TÂN BÌNH THUẬN

Chủ đầu tư: Anh TÂN

Địa chỉ thiết kế – xây dựng: tỉnh Bình Thuận

Diện tích đất: 5mx20m, diện tích thiết kế 184m2.

Công năng sử dụng:

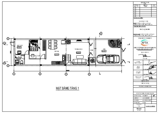
  • Tầng 1: Sân gara, Phòng khách, 1 phòng bếp, 1 phòng ngủ, 1 wc.
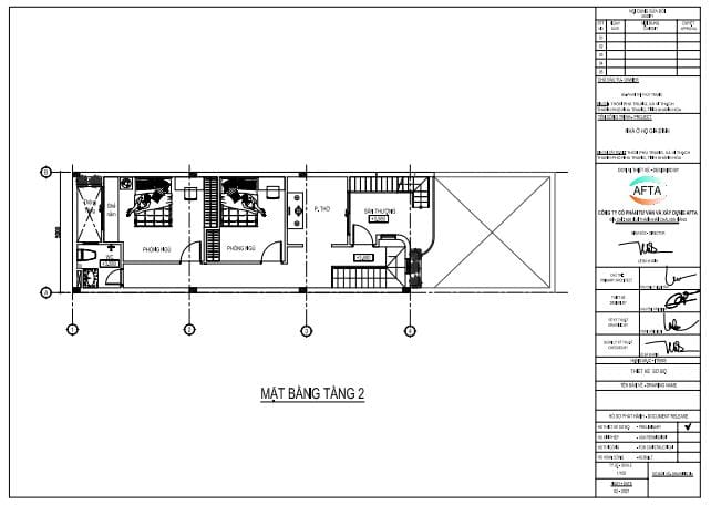
  • Tầng 2: 2 phòng ngủ, 1 wc, sân phơi.

Hình ảnh nhà anh Tân Bình Thuận

nha-anh-tan-binh-thuan
Mẫu nhà anh Tân hiện đại
nha-anh-tan-binh-thuan-tang-1
Mặt bằng tầng 1 nhà anh Tân
nha-anh-tan-binh-thuan-tang-2
Mặt bằng tầng 2 nhà anh Tân
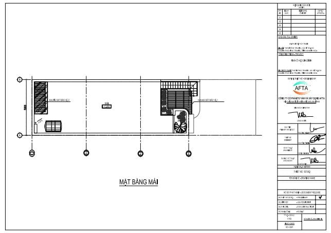
nha-anh-tan-binh-thuan-tang-mai
Mặt bằng mái nhà anh Tân

Công ty thiết kế nhà Đà Nẵng AFTA

Afta là công ty chuyên thiết kế thi công công trình các loại. Với nhiều năm trong lĩnh vực xây dựng, Afta tự tin mình là đơn vị thi công uy tín tại Đà Nẵng với nhiều loại công trình như: thi công phần thô, thi công nhà xưởng, thi công phòng trọ, thi công căn hộ, … Ngoài ra còn nhận thiết kế các công trình khác như: thiết kế nhà phố, thiết kế khách sạn, thiết kế quán cafe, thiết kế nội thất, … 

Chúng tôi cam kết:

  • Tư vấn tận tình, chu đáo, khảo sát thực tế cùng khách hàng tìm ra giải pháp tối ưu nhất
  • Chi phí cạnh tranh nhất phù hợp với ngân sách tài chính của khách hàng
  • Chất lượng thiết kế và công trình đảm bảo an toàn, giá trị thẩm mỹ và công năng sử dụng

Nhấc máy gọi ngay cho chúng tôi hoặc để lại thông tin liên hệ, thắc mắc AFTA giải đáp sớm nhất và nội dung đầy đủ nhất cho bạn.

Địa chỉ: 626 Núi Thành, Hoà Cường Nam, Hải Châu, Đà Nẵng, Việt Nam
Phone: 0935 29 5161
Gmail: aftavietnam@gmail.com

Bài viết này Mẫu thiết kế nhà 2 tầng hiện đại – Nhà anh Tân Bình Thuận xuất hiện lần đầu tại AFTA CÔNG TY TƯ VẤN XÂY DỰNG THIẾT KẾ NHÀ ĐÀ NẴNG.



source https://aftavietnam.com.vn/nha-anh-tan-binh-thuan/

Nhận xét

Bài đăng phổ biến từ blog này

Nhà khung thép 3 tầng đẹp – Chi phí xây dựng và mẫu thiết kế

Nhà 3 tầng phong cách lệch tầng hiện đại | Nhà chị Thúy Đà Nẵng

TUYỂN DỤNG KIẾN TRÚC SƯ – CÔNG TY KIẾN TRÚC AFTA